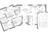
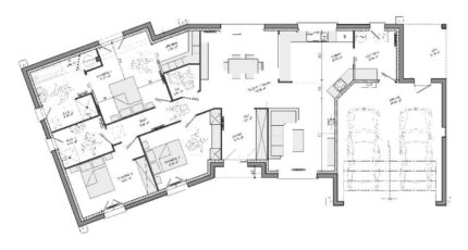
Plain-pied en V, double garage, 125m²

Plan maison 6 pièces 3 chambres Surface maison 125 m2

Maison de plain pied, disposée en V, offrant un style moderne et contemporain.
D'une surface habitable de plus de 125m², cette maison accueillera parfaitement votre famille avec :
- 1 pièce de vie de plus de 45m²
- 1 suite parentale d'environ 15 m² avec accès par portes coulissantes à un espace dressing et à une grande salle de bains de 10m² (douche, baignoire, vasque et wc)
- 2 chambres de plus de 12m² avec espace placard
- 1 salle d'eau (douche et vasque)
- 1 wc indépendant
- 1 local technique pouvant accueillir machine à laver, sèche linge et rangements
- 1 double garage menant au local technique puis à la cuisine

Contactez-nous pour plus d'infos !

Construire ce modèle ?

    * Champs obligatoires

    Vos informations sont traitées par HEXAOM et transmises à un conseiller commercial qui vous contactera afin de répondre à votre demande. Les plans et images présentés sur notre site sont la propriété d’HEXAOM et ne peuvent pas être reproduits sans son accord. Pour retrouver notre politique de protection des données personnelles et exercer vos droits conformément à la « loi informatique et liberté » cliquez-ici.