OPEN PPL 3CH 83

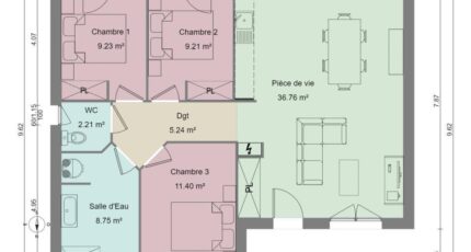
Plan maison 5 pièces 3 chambres Surface maison 83 m2

Maison en L sans Garage
Avec ses 83 m² et son architecture en L, ce plain-pied est pensé pour la convivialité et la praticité. Ses 3 chambres et son design épuré créent un espace chaleureux et fonctionnel. Sans garage, il privilégie la simplicité et le bien-être. Faire construire avec Maisons Les Naturelles, c'est investir dans une maison qui s'adapte à votre rythme de vie.

Construire ce modèle ?

    * Champs obligatoires

    Vos informations sont traitées par HEXAOM et transmises à un conseiller commercial qui vous contactera afin de répondre à votre demande. Les plans et images présentés sur notre site sont la propriété d’HEXAOM et ne peuvent pas être reproduits sans son accord. Pour retrouver notre politique de protection des données personnelles et exercer vos droits conformément à la « loi informatique et liberté » cliquez-ici.