OPEN PP 3CH SL

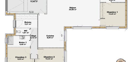
Plan maison 5 pièces 3 chambres Surface maison 93 m2

Plain-Pied Design
Ce plain-pied de 93 m² au style design est idéal pour ceux qui privilégient la simplicité et la fluidité des espaces. Avec ses 3 chambres et son agencement rectangulaire, il offre un confort accessible et chaleureux. Sans garage, il mise sur la convivialité et la fonctionnalité. Construire avec Maisons Les Naturelles, c'est choisir une maison qui facilite la vie et favorise la sérénité.

Construire ce modèle ?

    * Champs obligatoires

    Vos informations sont traitées par HEXAOM et transmises à un conseiller commercial qui vous contactera afin de répondre à votre demande. Les plans et images présentés sur notre site sont la propriété d’HEXAOM et ne peuvent pas être reproduits sans son accord. Pour retrouver notre politique de protection des données personnelles et exercer vos droits conformément à la « loi informatique et liberté » cliquez-ici.