Maison moderne avec pan cassé, vide sur hall, 110m²

Plan maison 5 pièces 3 chambres Surface maison 110 m2

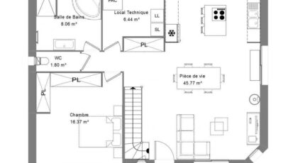
Belle maison contemporaine d'environ 110m² offrant un formidable lieu de vie sur 2 niveaux.
Au RDC, vous bénéficierez :
- d'une pièce de vie de plus de 45m²
- d'une grande chambre de 16 m² avec espace dressing intégré
- d'une salle de bain avec grande douche à l'italienne, baignoire et vasque
- 1 wc indépendant
- 1 local technique pour machine à laver, sèche-linge et rangements

Puis, à l'étage, vous profiterez :
- d'un palier avec vide sur hall
- de 2 chambres similaires d'environ 12m²

Construire ce modèle ?

    * Champs obligatoires

    Vos informations sont traitées par HEXAOM et transmises à un conseiller commercial qui vous contactera afin de répondre à votre demande. Les plans et images présentés sur notre site sont la propriété d’HEXAOM et ne peuvent pas être reproduits sans son accord. Pour retrouver notre politique de protection des données personnelles et exercer vos droits conformément à la « loi informatique et liberté » cliquez-ici.