Maison familiale contemporaine avec son toit rouge, 130m², garage

Plan maison 6 pièces 3 chambres Surface maison 130 à 140 m2

Belle maison contemporaine de plus de 130m² offrant un confortable lieu de vie sur 2 niveaux.

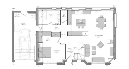
Au rez-de-chaussée, vous bénéficierez :
- d'une pièce de vie de plus de 45m²
- d'une chambre de 16 m² avec espace dressing intégré
- d'une salle de bain (grande douche à l'italienne et 2 vasques)
- d'un indépendant
- d'un garage permettant le stationnement d'un véhicule, avec espace pour machine à laver, sèche linge

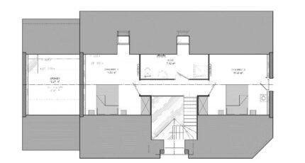
Puis, à l'étage, vous profiterez :
- d'un grand palier avec vide sur hall apportant espace et luminosité
- de 2 grandes chambres
- d'une salle de bain (1 vasque, 1 baignoire et 1 wc)

La lucarne et le vide sur hall apportent luminosité et style à cette belle maison.
Les prestations haut de gamme qu'offrent celle-ci apporteront bien-être et confort à chaque membre de votre famille.

Construire ce modèle ?

    * Champs obligatoires

    Vos informations sont traitées par HEXAOM et transmises à un conseiller commercial qui vous contactera afin de répondre à votre demande. Les plans et images présentés sur notre site sont la propriété d’HEXAOM et ne peuvent pas être reproduits sans son accord. Pour retrouver notre politique de protection des données personnelles et exercer vos droits conformément à la « loi informatique et liberté » cliquez-ici.