Maison design, 103m² , Toit terrasse de 14m²

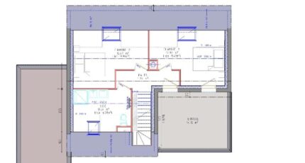
Plan maison 6 pièces 3 chambres Surface maison 103 m2

Modèle très contemporain avec ses différentes toitures et sa terrasse accessible depuis l'étage.
De quoi charmer toute la famille !

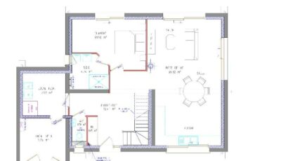
La maison est composée d'une grande entrée avec placard, d'une pièce de vie ouverte de plus de 36m², d'une suite parentale avec salle d'eau.
A l'étage, le palier dessert 2 belles chambres, une grande salle de bains, et une terrasse de 14m².
Le local vélo et le local technique apportent fonctionnalité et confort de vie au quotidien.

Un modèle à découvrir sans plus attendre chez Maisons les Naturelles !

Construire ce modèle ?

    * Champs obligatoires

    Vos informations sont traitées par HEXAOM et transmises à un conseiller commercial qui vous contactera afin de répondre à votre demande. Les plans et images présentés sur notre site sont la propriété d’HEXAOM et ne peuvent pas être reproduits sans son accord. Pour retrouver notre politique de protection des données personnelles et exercer vos droits conformément à la « loi informatique et liberté » cliquez-ici.