Maison de charme morderne, 132 m2, touches de briques

Plan maison 4 pièces 4 chambres Surface maison 83 à 135 m2

Maison sur 2 étages, avec ses briques en fond de porche et sur les lucarnes, lui apportant charme et modernité.
D'une superficie de 132m², les espaces sont pensés pour satisfaire chaque membre de la famille.
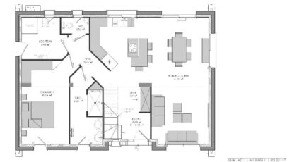
Un rez-de-chaussée pratique et fonctionnel, avec une belle pièce de vie ouverte, un local technique.
Une grande chambre ainsi qu'une belle salle de bains.
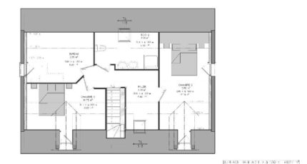
A l'étage, un grand palier dessert 3 belles chambres ainsi qu'une salle de bains.

A découvrir chez Maisons Les Naturelles !

Construire ce modèle ?

    * Champs obligatoires

    Vos informations sont traitées par HEXAOM et transmises à un conseiller commercial qui vous contactera afin de répondre à votre demande. Les plans et images présentés sur notre site sont la propriété d’HEXAOM et ne peuvent pas être reproduits sans son accord. Pour retrouver notre politique de protection des données personnelles et exercer vos droits conformément à la « loi informatique et liberté » cliquez-ici.