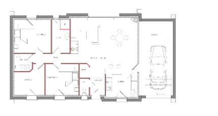
Maison avec garage et deux chambres et bureau au rez-de-chaussée

Plan maison 4 pièces 2 chambres Surface maison 83 m2

Ce modèle avec garage comprend un grand séjour salon avec cuisine ouverte, deux chambres, un bureau, une salle de bains ,un WC, un cellier et un vestiaire dans l'entrée le tout sur 83 m² (hors garage et combles).
Les combles sont aménageables et ce modèle est personnalisable comme tous nos modèles. Pour plus d'informations n'hésitez pas à prendre un rendez-vous pour une étude gratuite.

Construire ce modèle ?

    * Champs obligatoires

    Vos informations sont traitées par HEXAOM et transmises à un conseiller commercial qui vous contactera afin de répondre à votre demande. Les plans et images présentés sur notre site sont la propriété d’HEXAOM et ne peuvent pas être reproduits sans son accord. Pour retrouver notre politique de protection des données personnelles et exercer vos droits conformément à la « loi informatique et liberté » cliquez-ici.