R+1 NAT 123 Enduit

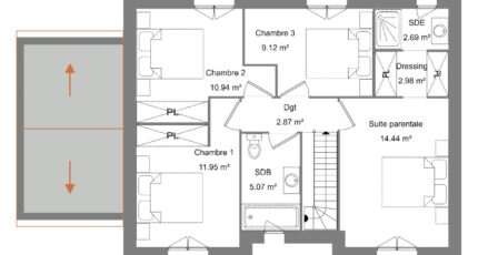
Plan maison 8 pièces 5 chambres Surface maison 123 m2

Maison Contemporaine à Étage
Offrez-vous un cadre de vie moderne avec ce modèle rectangulaire de 123 m². Son étage complet optimise l'espace pour accueillir 5 chambres et 2 salles de bain, parfait pour une famille en quête de confort. Avec son design contemporain et ses lignes épurées, cette maison favorise la luminosité et la convivialité. Construire avec Maisons Les Naturelles, c'est choisir un intérieur spacieux et fonctionnel pour améliorer votre qualité de vie.

Construire ce modèle ?

    * Champs obligatoires

    Vos informations sont traitées par HEXAOM et transmises à un conseiller commercial qui vous contactera afin de répondre à votre demande. Les plans et images présentés sur notre site sont la propriété d’HEXAOM et ne peuvent pas être reproduits sans son accord. Pour retrouver notre politique de protection des données personnelles et exercer vos droits conformément à la « loi informatique et liberté » cliquez-ici.