R+1 design avec grands volumes, 145m², double garage

Plan maison 7 pièces 3 chambres Surface maison 146 m2

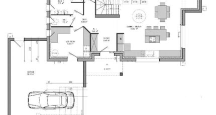
Superbe maison cubique au style très contemporain, offrant plus de 146m² habitables.

Avec au rez-de-chaussée :
- 1 pièce de vie de plus de 45m² offrant une vue directe sur une cave isolée de plus de 20m² grâce à des blocs de verre
- 1 chambre avec espace placard intégré
- 1 salle d'eau avec grande douche à l'italienne et vasque
- wc indépendant
- Local technique
- 1 garage double avec espace atelier de plus de 56m²

A l'étage :
- 1 grand palier / espace jeux de plus de 18 m²
- 1 chambre de 20 m²
- 1 suite parentale avec salle de bains et dressing
- Terrasse accessible depuis la suite parentale

Une maison mélangeant charme et modernité, avec des volumes pensés pour le confort de chacun.
A découvrir très vite chez Maisons Les Naturelles !

Construire ce modèle ?

    * Champs obligatoires

    Vos informations sont traitées par HEXAOM et transmises à un conseiller commercial qui vous contactera afin de répondre à votre demande. Les plans et images présentés sur notre site sont la propriété d’HEXAOM et ne peuvent pas être reproduits sans son accord. Pour retrouver notre politique de protection des données personnelles et exercer vos droits conformément à la « loi informatique et liberté » cliquez-ici.