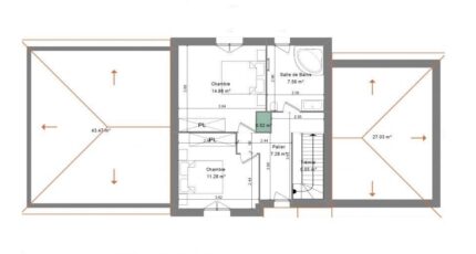
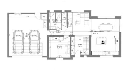
R+1 design avec double garage, 115m²

Plan maison 7 pièces 3 chambres Surface maison 115 m2

Maison de style cubique d'environ 115m² s'élevant sur deux étages complets.
Lumineuse et fonctionnelle, cette maison a de nombreux atouts :
Une entrée avec placards intégrés,
Une belle pièce de vie ouverte,
2 salles de bains équipées de douche à l'italienne et baignoire,
3 chambres équipées de placards intégrés,
Un garage double avec espace buanderie.

Cette maison offre des espaces conçus pour le bien-être de chaque membre de votre famille.
A découvrir très vite chez Maisons Les Naturelles !

Construire ce modèle ?

    * Champs obligatoires

    Vos informations sont traitées par HEXAOM et transmises à un conseiller commercial qui vous contactera afin de répondre à votre demande. Les plans et images présentés sur notre site sont la propriété d’HEXAOM et ne peuvent pas être reproduits sans son accord. Pour retrouver notre politique de protection des données personnelles et exercer vos droits conformément à la « loi informatique et liberté » cliquez-ici.