R+1 design avec 2 modules, 130m², garage

Plan maison 8 pièces 4 chambres Surface maison 130 à 131 m2

Cette maison design de plus de 131m² offrira à votre famille un formidable lieu de vie sur 2 niveaux.
Ses deux modules de couleur lui apportent non seulement du style mais permettent également d'optimiser l'espace.
Au rez-de-chaussée, vous bénéficierez :
- d'une pièce de vie de plus de 45m²
- d'un garage
- d'un cellier
- d'une chambre
- d'une salle de bain équipée d'une douche à l'italienne et d'une vasque
- d'un wc indépendant

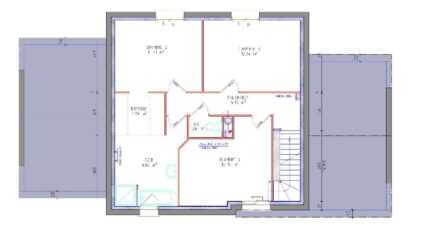
Puis, à l'étage, vous profiterez de :
- 2 belles chambres
- 1 suite parentale avec dressing et salle de bains
- 1 wc indépendant

Une maison lumineuse et fonctionnelle grâce a ses espaces bien pensés et ses nombreux placards intégrés.
A découvrir sans plus attendre chez Maisons Les Naturelles !

Construire ce modèle ?

    * Champs obligatoires

    Vos informations sont traitées par HEXAOM et transmises à un conseiller commercial qui vous contactera afin de répondre à votre demande. Les plans et images présentés sur notre site sont la propriété d’HEXAOM et ne peuvent pas être reproduits sans son accord. Pour retrouver notre politique de protection des données personnelles et exercer vos droits conformément à la « loi informatique et liberté » cliquez-ici.