R+1 design, 195m², toit terrasse, double garage

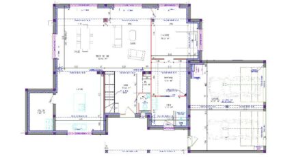
Plan maison 7 pièces 4 chambres Surface maison 195 m2

Superbe modèle design s'élevant sur 2 étages complets.
Son toit plat et sa terrasse accessible amènent relief et modernité à celui-ci.

Au rez-de-chaussée, vous bénéficierez :
- D'une entrée avec placard intégré
- D'une pièce de vie de 65m² avec cellier attenant à la cuisine
- D'une suite parentale de plus de 32m² avec dressing et salle de bains
- D'un garage double

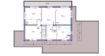
A l'étage :
- Un grand palier bureau de plus de 22m² avec accès à la terrasse extérieure
- 3 grandes chambres
- Une grande salle de bains

De quoi charmer tous les membres de la famille !
Contactez-nous pour plus d'informations.

Construire ce modèle ?

    * Champs obligatoires

    Vos informations sont traitées par HEXAOM et transmises à un conseiller commercial qui vous contactera afin de répondre à votre demande. Les plans et images présentés sur notre site sont la propriété d’HEXAOM et ne peuvent pas être reproduits sans son accord. Pour retrouver notre politique de protection des données personnelles et exercer vos droits conformément à la « loi informatique et liberté » cliquez-ici.