PPL NAT 145 GI Enduit

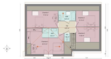
Plan maison 8 pièces 5 chambres Surface maison 145 m2

Maison Design en L
Avec ses 145 m² et son architecture en L, ce modèle séduit par son élégance et son ergonomie. 5 chambres et 3 salles de bain aménagées offrent un confort optimal pour toute la famille. Le garage intégré et les volumes généreux renforcent la praticité au quotidien. Faire construire avec Maisons Les Naturelles, c'est investir dans un espace où bien-être et modernité se rencontrent.

Construire ce modèle ?

    * Champs obligatoires

    Vos informations sont traitées par HEXAOM et transmises à un conseiller commercial qui vous contactera afin de répondre à votre demande. Les plans et images présentés sur notre site sont la propriété d’HEXAOM et ne peuvent pas être reproduits sans son accord. Pour retrouver notre politique de protection des données personnelles et exercer vos droits conformément à la « loi informatique et liberté » cliquez-ici.