PP Invest 60 2 CH

Plan maison 4 pièces 2 chambres Surface maison 60 m2

Une maison optimisée pour les investisseurs, conforme aux normes PMR
Ce plan de maison est conçu pour répondre parfaitement aux besoins des investisseurs immobiliers cherchant un bien à forte attractivité locative. Avec un agencement optimisé et conforme aux normes PMR (Personnes à Mobilité Réduite), cette maison garantit accessibilité, confort et fonctionnalité pour tous les occupants.
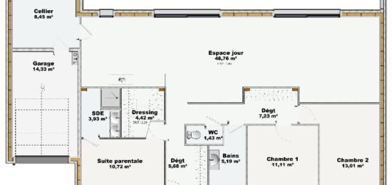
L'espace de vie principal de 32,19 m² se distingue par sa grande luminosité, grâce à de larges ouvertures permettant une belle connexion avec l'extérieur. Cette pièce spacieuse offre de multiples possibilités d'aménagement, alliant convivialité et praticité.
La partie nuit est composée de deux chambres confortables (10,15 m² et 11,16 m²), idéales pour accueillir des locataires ou une petite famille. La salle d'eau de 5,05 m², entièrement adaptée aux besoins des personnes à mobilité réduite, est équipée d'une douche à l'italienne et d'un agencement ergonomique. Le dégagement compact (1,34 m²) facilite la circulation fluide dans toute la maison.
Ce bien, pensé pour répondre aux exigences du marché locatif, est une solution clé en main pour les investisseurs soucieux de garantir un rendement durable tout en offrant un cadre de vie adapté à tous.

Construire ce modèle ?

    * Champs obligatoires

    Vos informations sont traitées par HEXAOM et transmises à un conseiller commercial qui vous contactera afin de répondre à votre demande. Les plans et images présentés sur notre site sont la propriété d’HEXAOM et ne peuvent pas être reproduits sans son accord. Pour retrouver notre politique de protection des données personnelles et exercer vos droits conformément à la « loi informatique et liberté » cliquez-ici.