Moderne et fonctionnelle, 130m² avec garage

Plan maison 6 pièces 4 chambres Surface maison 130 m2

Pavillon de style contemporain avec ses tuiles en terre cuite ardoisées, ses 2 teintes d'enduit et ses menuiseries en aluminium anthracite.
Cette belle maison, s'élevant sur 2 étages, vous offrira plus de 130m² habitables.
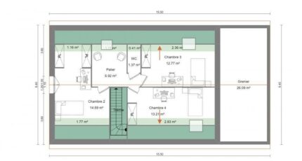
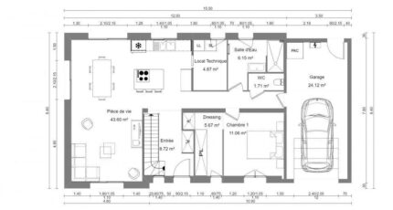
Vous disposerez également d'un garage de plus de 24m² pour garer votre véhicule, ainsi que d'un grenier au dessus de celui-ci.

Au rez-de chaussée :
- La pièce de vie, de plus de 43m², fera un bel espace commun.
- 1 chambre parentale avec dressing de près de 16m²
- 1 grande salle d'eau
- 1 wc indépendant
- 1 local technique

A l'étage :
- 3 grandes chambres
- 1 palier /bureau
- 1 wc

Maisons Les Naturelles, c'est avant tout le pouvoir du sur-mesure !
Les prestations sont adaptées et adaptables en fonction des besoins et envies de chacun.

Construire ce modèle ?

    * Champs obligatoires

    Vos informations sont traitées par HEXAOM et transmises à un conseiller commercial qui vous contactera afin de répondre à votre demande. Les plans et images présentés sur notre site sont la propriété d’HEXAOM et ne peuvent pas être reproduits sans son accord. Pour retrouver notre politique de protection des données personnelles et exercer vos droits conformément à la « loi informatique et liberté » cliquez-ici.