Maison R+1, garage, 4 chambres

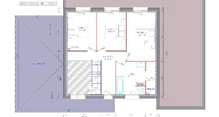
Plan maison 8 pièces 4 chambres Surface maison 146 m2

Maison d'environ 146 m² de surface habitable comprenant : au rez-de-chaussée : une entrée ouverte sur une grande pièce de vie avec cuisine ouverte, une chambre, un dressing, une SDB, un WC, un cellier et un garage; à l'étage : un palier, 3 chambres et une SDB.

Construire ce modèle ?

    * Champs obligatoires

    Vos informations sont traitées par HEXAOM et transmises à un conseiller commercial qui vous contactera afin de répondre à votre demande. Les plans et images présentés sur notre site sont la propriété d’HEXAOM et ne peuvent pas être reproduits sans son accord. Pour retrouver notre politique de protection des données personnelles et exercer vos droits conformément à la « loi informatique et liberté » cliquez-ici.