Maison R+1 avec toit terrasse accessible

Plan maison 5 pièces 2 chambres Surface maison 130 à 140 m2

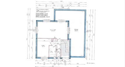
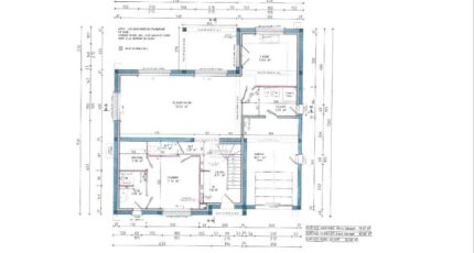
Maison d'environ 135 m² de surface habitable comprenant au rez-de-chaussée : une entrée, séjour d'environ 33 m², cuisine fermée, cellier, suite parentale avec SDB et dressing, WC et garage. À l'étage : palier, salle de sport d'environ 30 m², 1 chambre, SDB, WC et grande terrasse en L d'environ 49 m².

Construire ce modèle ?

    * Champs obligatoires

    Vos informations sont traitées par HEXAOM et transmises à un conseiller commercial qui vous contactera afin de répondre à votre demande. Les plans et images présentés sur notre site sont la propriété d’HEXAOM et ne peuvent pas être reproduits sans son accord. Pour retrouver notre politique de protection des données personnelles et exercer vos droits conformément à la « loi informatique et liberté » cliquez-ici.