Maison R+1, 4 chambres

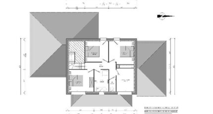
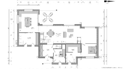
Plan maison 9 pièces 4 chambres Surface maison 190 à 195 m2

Maison d'environ 192 m² de surface habitable comprenant : au rez-de-chaussée : une entrée, un bureau, un séjour/salon, une cuisine, une grande chambre avec dressing et SDB, un WC et un local technique; à l'étage : un dégagement menant à 3 chambres, une salle de jeux; un WC et une SDB.

Construire ce modèle ?

    * Champs obligatoires

    Vos informations sont traitées par HEXAOM et transmises à un conseiller commercial qui vous contactera afin de répondre à votre demande. Les plans et images présentés sur notre site sont la propriété d’HEXAOM et ne peuvent pas être reproduits sans son accord. Pour retrouver notre politique de protection des données personnelles et exercer vos droits conformément à la « loi informatique et liberté » cliquez-ici.