Maison moderne 130m², garage

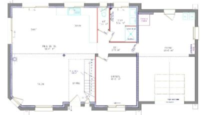
Plan maison 8 pièces 4 chambres Surface maison 130 m2

Maison moderne d'une surface totale de 130m².
Lumineuse, agréable et fonctionnelle, elle dispose de nombreux atouts.
La pièce de vie de plus de 50m² vous permettra de vivre au quotidien et de recevoir dans un réel confort.
Les 4 grandes chambres permettront à chacun de disposer de son propre espace, et les 2 salles de bains éviteront les embouteillages le matin !
Enfin, le grand garage pourra non seulement accueillir votre véhicule, mais également une partie technique (lave-linge, sèche-linge).
Une maison pensée pour votre confort, votre sérénité, signée Maisons Les Naturelles !

Construire ce modèle ?

    * Champs obligatoires

    Vos informations sont traitées par HEXAOM et transmises à un conseiller commercial qui vous contactera afin de répondre à votre demande. Les plans et images présentés sur notre site sont la propriété d’HEXAOM et ne peuvent pas être reproduits sans son accord. Pour retrouver notre politique de protection des données personnelles et exercer vos droits conformément à la « loi informatique et liberté » cliquez-ici.