Maison familiale, 170 m², 4 chambres, garage

Plan maison 8 pièces 4 chambres Surface maison 170 m2

Maison familiale avec de grands volumes pour contenter chaque membre de votre famille.
Cette maison d'une surface de 170m² présente un aspect contemporain avec son toit noir et ses touches de briques.
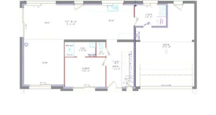
Avec au rez-de-chaussée :
- Une entrée semi-ouverte
- Une belle pièce de vie de 51m²
- Une suite parentale avec salle d'eau attenante
- Wc indépendant
- Grand garage avec cellier attenant
Puis à l'étage :
- Un grand palier / bureau
- 3 grandes chambres
- 1 salle de bains
- Un wc indépendant
- Grenier

Un confort de vie à la mesure de vos attentes, c'est aussi ça Maisons Les Naturelles !
Prenez contact avec nous pour plus d'informations.

Construire ce modèle ?

    * Champs obligatoires

    Vos informations sont traitées par HEXAOM et transmises à un conseiller commercial qui vous contactera afin de répondre à votre demande. Les plans et images présentés sur notre site sont la propriété d’HEXAOM et ne peuvent pas être reproduits sans son accord. Pour retrouver notre politique de protection des données personnelles et exercer vos droits conformément à la « loi informatique et liberté » cliquez-ici.