Maison en L à étage, garage, 2 chambres dortoir

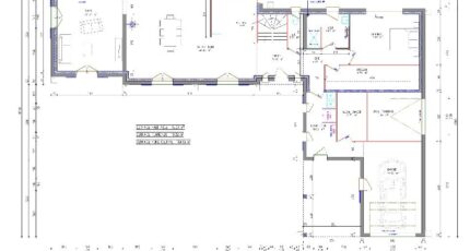
Plan maison 6 pièces 3 chambres Surface maison 190 à 200 m2

Maison d'environ 195 m² de surface habitable comprenant : au rez-de-chaussée : une entrée, une cuisine ouverte sur salle à manger, un salon, un WC, une salle d'eau, une chambres, un dressing, un local technique, un local à tondeuse et un garage; à l'étage : un palier, une SDB, une chambre, un dortoir et le grenier.

Construire ce modèle ?

    * Champs obligatoires

    Vos informations sont traitées par HEXAOM et transmises à un conseiller commercial qui vous contactera afin de répondre à votre demande. Les plans et images présentés sur notre site sont la propriété d’HEXAOM et ne peuvent pas être reproduits sans son accord. Pour retrouver notre politique de protection des données personnelles et exercer vos droits conformément à la « loi informatique et liberté » cliquez-ici.