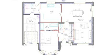
Maison design avec bow-window, 125m² avec garage

Plan maison 8 pièces 4 chambres Surface maison 124.7 m2

Modèle contemporain avec son atout charme : le bow-window !
Cette maison de 125 m² est composée d'une pièce de vie de plus de 40m², d'une suite parentale avec salle d'eau, d'un grand palier / bureau, 3 belles chambres, dressing, salle de bains.
Le garage et le local technique, attenants à la cuisine, viennent optimiser la fonctionnalité de cette maison.

A découvrir sans plus attendre chez Maisons Les Naturelles !

Construire ce modèle ?

    * Champs obligatoires

    Vos informations sont traitées par HEXAOM et transmises à un conseiller commercial qui vous contactera afin de répondre à votre demande. Les plans et images présentés sur notre site sont la propriété d’HEXAOM et ne peuvent pas être reproduits sans son accord. Pour retrouver notre politique de protection des données personnelles et exercer vos droits conformément à la « loi informatique et liberté » cliquez-ici.