Maison de 97m², 3 chambres, garage

Plan maison 5 pièces 3 chambres Surface maison 97 m2

Pavillon de style contemporain avec ses tuiles en terre cuite ardoisées, ses belles briques de parement en fond de porche et ses menuiseries en aluminium anthracite.
Cette belle maison, s'élevant sur 2 étages, vous offrira plus de 97m² habitables.
Vous disposerez également d'un garage accolé à la maison, surmonté d'un grenier.

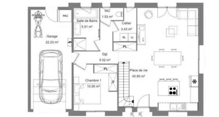
Au rez-de chaussée :
- La pièce de vie, de plus de 40m², fera un bel espace commun.
- 1 chambre avec placard intégré
- 1 salle de bains avec douche à l'italienne et baignoire
- 1 wc indépendant
- 1 cellier

A l'étage :
- 2 chambres
- 1 palier /bureau
- 1 wc

Une maison pensée pour votre confort au quotidien, une priorité pour Maisons Les Naturelles !

Construire ce modèle ?

    * Champs obligatoires

    Vos informations sont traitées par HEXAOM et transmises à un conseiller commercial qui vous contactera afin de répondre à votre demande. Les plans et images présentés sur notre site sont la propriété d’HEXAOM et ne peuvent pas être reproduits sans son accord. Pour retrouver notre politique de protection des données personnelles et exercer vos droits conformément à la « loi informatique et liberté » cliquez-ici.