Maison contemporaine avec son toit rouge, 96m² avec garage

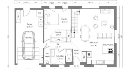
Plan maison 5 pièces 3 chambres Surface maison 96 m2

Maison alliant un style contemporain et traditionnel à la fois, avec ses tuiles en terre cuite rouges et ses menuiseries en aluminium anthracite.
Cette belle maison, s'élevant sur 2 étages, vous offrira plus de 96m² habitables.
Vous disposerez également d'un garage accolé à la maison, surmonté d'un grenier.

Au rez-de chaussée :
- Belle pièce de vie de plus de 40m²
- 1 chambre avec dressing
- 1 salle d'eau équipée d'une grande douche à l'italienne
- 1 wc indépendant

A l'étage :
- 2 chambres

Maisons Les Naturelles, c'est avant tout le pouvoir du sur-mesure !
Les prestations sont adaptées et adaptables en fonction des besoins et envies de chacun.

Construire ce modèle ?

    * Champs obligatoires

    Vos informations sont traitées par HEXAOM et transmises à un conseiller commercial qui vous contactera afin de répondre à votre demande. Les plans et images présentés sur notre site sont la propriété d’HEXAOM et ne peuvent pas être reproduits sans son accord. Pour retrouver notre politique de protection des données personnelles et exercer vos droits conformément à la « loi informatique et liberté » cliquez-ici.