Maison combles aménagées, garage, 4 chambres

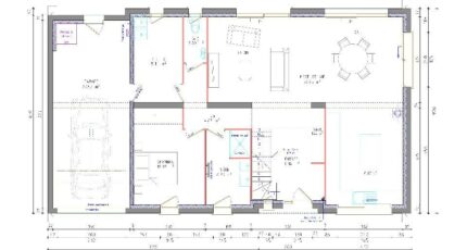
Plan maison 7 pièces 4 chambres Surface maison 155 à 156 m2

Maison d'environ 156 m² de surface habitable comprenant : au rez-de-chaussée : une entrée avec vestiaire, la cuisine ouverte sur une grande pièce de vie, une SDB, une chambre, un cellier, un WC et un garage; à l'étage : un grand palier pouvant servir de bureau, 3 chambres (dont 2 grandes de 17m² et 20m²), une SDB.

Construire ce modèle ?

    * Champs obligatoires

    Vos informations sont traitées par HEXAOM et transmises à un conseiller commercial qui vous contactera afin de répondre à votre demande. Les plans et images présentés sur notre site sont la propriété d’HEXAOM et ne peuvent pas être reproduits sans son accord. Pour retrouver notre politique de protection des données personnelles et exercer vos droits conformément à la « loi informatique et liberté » cliquez-ici.