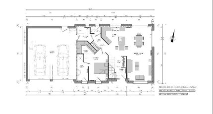
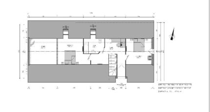
Maison combles aménagées, double garage, 3 chambres

Plan maison 6 pièces 3 chambres Surface maison 133 à 134 m2

Maison d'environ 133 m² de surface habitable comprenant : au rez-de-chaussée : une entrée avec vestiaire, une cuisine ouverte sur le séjour, une chambre avec SDB et dressing, un WC et un local technique; à l'étage : un grand palier, une SDB, 2 chambres et un grenier.

Construire ce modèle ?

    * Champs obligatoires

    Vos informations sont traitées par HEXAOM et transmises à un conseiller commercial qui vous contactera afin de répondre à votre demande. Les plans et images présentés sur notre site sont la propriété d’HEXAOM et ne peuvent pas être reproduits sans son accord. Pour retrouver notre politique de protection des données personnelles et exercer vos droits conformément à la « loi informatique et liberté » cliquez-ici.