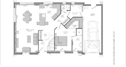
Maison avec combles aménagés, 124m², garage

Plan maison 4 pièces 3 chambres Surface maison 80 à 130 m2

Maison alliant un style traditionnel et contemporain à la fois grâce a ses belles menuiseries en aluminium anthracite.
Celle-ci s'élève sur 2 étages, offrant ainsi plus de 124m² habitables pour contenter toute la famille.
Equipée d'un garage, vous pourrez y garer votre véhicule et disposer d'espace pour du rangement.
La pièce de vie de plus de 40m² ouverte et atypique saura vous séduire !
Au rez-de-chaussée, vous profiterez d'une grande suite parentale avec dressing et salle de bains privative.
A l'étage un grand palier dessert 2 belles chambres et 1 salle de bains.

Pour plus d'infos, contactez-nous !

Construire ce modèle ?

    * Champs obligatoires

    Vos informations sont traitées par HEXAOM et transmises à un conseiller commercial qui vous contactera afin de répondre à votre demande. Les plans et images présentés sur notre site sont la propriété d’HEXAOM et ne peuvent pas être reproduits sans son accord. Pour retrouver notre politique de protection des données personnelles et exercer vos droits conformément à la « loi informatique et liberté » cliquez-ici.