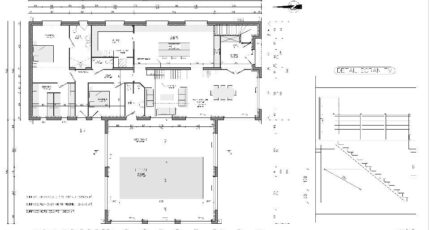
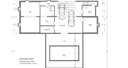
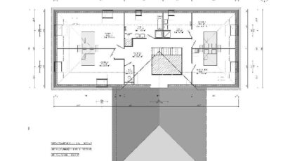
Maison à étage, 5 chambres, sous sol, garage

Plan maison 12 pièces 5 chambres Surface maison 350 à 380 m2

Maison d'environ 370 m² de surface habitable comprenant : au rez-de-chaussée : une entrée avec vestiaire, une cuisine avec cellier, pièce de vie, 2 chambres, WC, salle de bain et dressing ; à l'étage : 3 chambres, WC, 2 salles de bains et une salle de jeux. Sous-sol aménagé avec garage.

Construire ce modèle ?

    * Champs obligatoires

    Vos informations sont traitées par HEXAOM et transmises à un conseiller commercial qui vous contactera afin de répondre à votre demande. Les plans et images présentés sur notre site sont la propriété d’HEXAOM et ne peuvent pas être reproduits sans son accord. Pour retrouver notre politique de protection des données personnelles et exercer vos droits conformément à la « loi informatique et liberté » cliquez-ici.