Horizon 115 GA

Plan maison 6 pièces 4 chambres Surface maison 115 m2

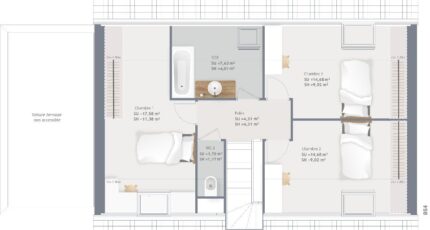
La ligne Horizon c'est la maison traditionnelle à étage avec combles aménagés de notre catalogue de maison. Avec ces 115 m² ce plan de maison offre une grande pièce de vie agréable et lumineuse avec notamment 2 baies vitrées qui traversent le rez-de-chaussée. Atout charme architectural de cette maison, la couverture du garage est disponible en toiture plate. Cette maison se démarque par sa grande pièce de vie de 38 m² avec une cuisine ouverte de 10 m² mais aussi par sa suite parentale de 18 m² au rez-de-chaussée avec dressing et salle d'eau ! Autre élément fort de ce plan, son cellier avec accès direct à la cuisine et au garage accolé de 18 m². Pour compléter, l'étage se compose de 3 chambres sous pente dont deux de 9 m² et une de 11 m², chacune équipée d'une fenêtre de toit et de placard. Une pièce d'eau de 7 m² avec une baignoire et une double vasque termine la composition de ce niveau.

Construire ce modèle ?

    * Champs obligatoires

    Vos informations sont traitées par HEXAOM et transmises à un conseiller commercial qui vous contactera afin de répondre à votre demande. Les plans et images présentés sur notre site sont la propriété d’HEXAOM et ne peuvent pas être reproduits sans son accord. Pour retrouver notre politique de protection des données personnelles et exercer vos droits conformément à la « loi informatique et liberté » cliquez-ici.