Eco Concept 90 R+1 GI

Plan maison 5 pièces 3 chambres Surface maison 90 m2

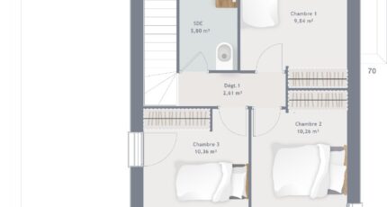
Inspirée des maisons californiennes des années 50 et 60, la gamme de maisons Eco Concept s'adapte à l'expression de la vie des hommes et des femmes du monde d'aujourd'hui. Dans sa configuration de 90 m² en étage, le rez-de-chaussée est dédié à l'espace de jour avec 31 m² de pièce de vie ouverte sur une cuisine de 6 m². La pièce est très largement vitrée et placée en retrait sous le débord des chambres de l'étage pour lui assurer une surface extérieure protégée. Un cellier, un WC et un garage complètent ce niveau. L'étage est lui dédiée à l'espace nuit avec 3 chambres équipées de placards et une salle d'eau de 6 m². Pour ce modèle très moderne, nous vous proposons une façade contemporaine blanche et grise. Avec une petite emprise au sol, cette maison de 90 m² est idéale pour les petites surfaces de terrain.

Construire ce modèle ?

    * Champs obligatoires

    Vos informations sont traitées par HEXAOM et transmises à un conseiller commercial qui vous contactera afin de répondre à votre demande. Les plans et images présentés sur notre site sont la propriété d’HEXAOM et ne peuvent pas être reproduits sans son accord. Pour retrouver notre politique de protection des données personnelles et exercer vos droits conformément à la « loi informatique et liberté » cliquez-ici.