Maison neuve à
Seninghem
(62380) Référence :
TS2301305_5
Prix du projet : Maison avec Terrain
prix 265 880 €
- 5 pièces
- 4 chambres
- Surface maison 110 m2
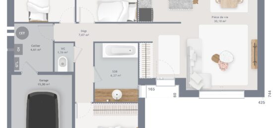
VENTE : maison F5 (110 m²) à Seninghem
PROCHE DE CALAIS - MAISON 5 PIÈCES NEUVE
En vente : à quelques kilomètres de la mer et à deux pas de Calais, venez découvrir cette maison de 5 pièces de 110 m² à Seninghem (62380).
Cette maison possède 2 niveaux. Elle se divise en quatre chambres, une cuisine et une salle de bains. Cette maison est neuve.
Le terrain de la propriété est de 792 m².
L'École Maternelle rpi 111 est implantée à moins de 10 minutes à pied. L'autoroute A26 et la nationale N42 sont accessibles à moins de 10 km.
Elle est proposée à l'achat pour 265 880 €.
Prenez contact avec Tony SORET (06-19-80-48-71) pour plus d'informations sur la maison, sur les démarches à suivre ou sur les modalités de vente. Maisons Les Naturelles Boulogne-sur-Mer vous accompagne à toutes les étapes de votre projet et dans tous vos projets immobiliers.
« Depuis 1968, Maisons Les Naturelles accompagne ses clients dans la construction de maisons alliant savoir-faire artisanal, traditions et respect de l'environnement.
Avec plus de 5 500 réalisations à notre actif, nous sommes reconnus pour la qualité de nos constructions et notre engagement en faveur d'une approche plus durable de l'habitat.
Nous privilégions des matériaux français, biosourcés et à faible empreinte carbone, tout en collaborant avec des artisans locaux qui partagent nos valeurs.
Parce que chaque client est unique, nous concevons des maisons sur mesure, pensées pour allier esthétique, confort et haute performance énergétique.
Construisons ensemble un avenir plus responsable, en créant des maisons qui s'intègrent harmonieusement à leur environnement et favorisent un mode de vie durable. »
Mentions légales
Terrain proposé par un partenaire foncier selon disponibilités et autorisation de publicité au prix de 39 980 €. Hors droit d'enregistrement et frais de notaire. Maison proposée, avec un contrat de construction de maison individuelle, dans le cadre de la loi du 19/12/1990, au prix de 225 900 € (Hors branchements et raccordements, papiers peints, peintures, revêtement de sol dans les chambres, qui sont chiffrés dans les travaux qui restent à charge du client. Tarif modifiable sans préavis). Étiquette énergie : A. Différents modèles disponibles pour ce terrain. Assurances et garanties du constructeur comprises (RC professionnelle, décennale, dommage ouvrage).Agence Maisons Les Naturelles de Boulogne-sur-Mer (62200)
- Téléphone :
- 03 21 92 26 26
- Adressse :
- 10 rue Felix Adam
62200 Boulogne-sur-Mer, France
