Maison neuve à
Seninghem
(62380) Référence :
TS2301305_2
Prix du projet : Maison avec Terrain
prix 267 405 €
- 4 pièces
- 3 chambres
- Surface maison 94 m2
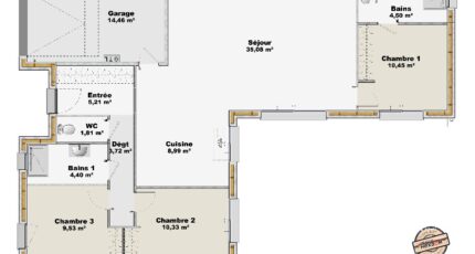
VENTE d'une maison de 4 pièces (94 m²) à Seninghem
MAISON 4 PIÈCES NEUVE - PROCHE DE CALAIS
En vente : à quelques kilomètres de la mer et à 31 km de Calais, découvrez à Seninghem (62380), cette maison de 4 pièces de plain-pied de 94 m².
Conçue de plain-pied, elle se divise en trois chambres, une cuisine et deux salles de bains. Cette maison est neuve.
Le terrain de la propriété est de 792 m².
Il y a l'École Maternelle rpi 111 à moins de 10 minutes à pied. L'autoroute A26 et la nationale N42 sont accessibles à moins de 10 km.
Elle est proposée à l'achat pour 267 405 €.
Prenez contact avec notre agence (SORET Tony : 06-19-80-48-71) pour plus d'informations sur cette maison. Faites de vos projets immobiliers une réalité avec Maisons Les Naturelles Boulogne-sur-Mer.
Mentions légales
Terrain proposé par un partenaire foncier selon disponibilités et autorisation de publicité au prix de 39 980 €. Hors droit d'enregistrement et frais de notaire. Maison proposée, avec un contrat de construction de maison individuelle, dans le cadre de la loi du 19/12/1990, au prix de 227 425 € (Hors branchements et raccordements, papiers peints, peintures, revêtement de sol dans les chambres, qui sont chiffrés dans les travaux qui restent à charge du client. Tarif modifiable sans préavis). Étiquette énergie : A. Différents modèles disponibles pour ce terrain. Assurances et garanties du constructeur comprises (RC professionnelle, décennale, dommage ouvrage).Agence Maisons Les Naturelles de Boulogne-sur-Mer (62200)
- Téléphone :
- 03 21 92 26 26
- Adressse :
- 10 rue Felix Adam
62200 Boulogne-sur-Mer, France
