Maison neuve à
Saint-Valery-sur-Somme
(80230) Référence :
CC2287728_8
Prix du projet : Maison avec Terrain
prix 264 251 €
- 4 pièces
- 3 chambres
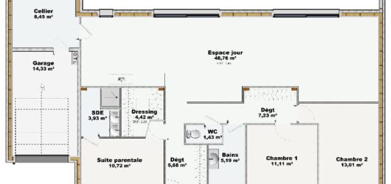
- Surface maison 83 m2
Quartier recherché - RARE OPPORTUNITE - 6 MINUTES DE SAINT VALERY SUR SOMME - À découvrir à PINCHEFALISE (BOISMONT 80230)
VENTE : maison A OSSATURE BOIS F4 (83 m²) à Boismont
QUARTIER RECHERCHÉ - MAISON OSSATURE BOIS 4 PIÈCES NEUVE
En vente à 21 km de la Manche, notre agence Maisons Les Naturelles Abbeville est ravie de vous présenter cette maison de 4 pièces de plain-pied de 83 m², située dans un quartier prisé de Boismont (80230). Son intérieur se divise en trois chambres, une cuisine et une salle de bains.
Le terrain du bien s'étend sur 615 m².
Cette maison est neuve.
La maison est située dans un secteur attractif. Une école élémentaire y est implantée. Côté transports en commun, on trouve la gare Noyelles-sur-Mer à moins de 10 minutes en voiture. Les autoroutes A16 et A28 sont accessibles à moins de 9 km. Il y a une bibliothèque à quelques minutes à peine.
Elle est à vendre pour la somme de 264 251 €.
Prenez contact avec notre constructeur (Camille CISSEVILLE : 06-86-73-58-15) pour toute question sur la propriété. Maisons Les Naturelles Abbeville est là pour vous accompagner dans toutes vos démarches.
Mentions légales
Terrain proposé par un partenaire foncier selon disponibilités et autorisation de publicité au prix de 76 000 €. Hors droit d'enregistrement et frais de notaire. Terrain + Maison proposés au prix de 188 251 € (Hors branchements et raccordements, papiers peints, peintures, revêtement de sol dans les chambres. Tarif modifiable sans préavis). Etiquette énergie : A. Différents modèles disponibles pour ce terrain. Assurances et garanties du constructeur (RC professionnelle, décennale, dommage ouvrage, garantie de remboursement de l'acompte, livraison à prix et délai convenu) : https://www.maisonslesnaturelles.fr/informations-legales/.Agence Maisons Les Naturelles de Abbeville (80100)
- Téléphone :
- 03 22 19 22 55
- Adressse :
- 2 rue Lesueur
80100 Abbeville, France
