Maison neuve à
Saint-Maxent
(80140) Référence :
CC2385707_5
Prix du projet : Maison avec Terrain
prix 224 351 €
- 4 pièces
- 3 chambres
- Surface maison 83 m2
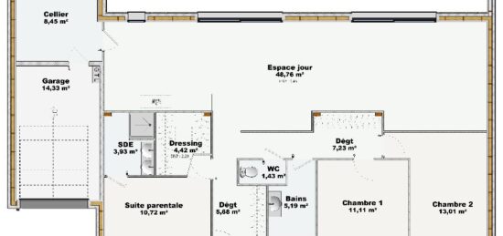
VENTE d'une maison T4 (83 m²) à Saint-Maxent
MAISON 4 PIÈCES NEUVE
À 33 km de la Manche, votre agence Maisons Les Naturelles Abbeville est heureuse de vous présenter à vendre à Saint-Maxent (80140), cette maison de 4 pièces de plain-pied de 83 m². Son intérieur offre trois chambres, une cuisine et une salle de bains.
Le terrain du bien est de 1 700 m².
Cette maison est neuve.
Une école élémentaire est implantée dans le quartier. L'autoroute A28 est accessible à 2 km. Il y a un commerce dans les environs.
Elle est proposée à l'achat pour 224 351 €.
Contactez Camille CISSEVILLE (06-86-73-58-15) pour plus de renseignements sur cette maison ou sur les modalités de vente. Maisons Les Naturelles Abbeville est là pour vous accompagner dans toutes vos démarches.
Mentions légales
Terrain proposé par un partenaire foncier selon disponibilités et autorisation de publicité au prix de 38 000 €. Hors droit d'enregistrement et frais de notaire. Terrain + Maison proposés au prix de 224 351 € (Hors branchements et raccordements, papiers peints, peintures, revêtement de sol dans les chambres. Tarif modifiable sans préavis). Etiquette énergie : A. Différents modèles disponibles pour ce terrain. Assurances et garanties du constructeur (RC professionnelle, décennale, dommage ouvrage, garantie de remboursement de l'acompte, livraison à prix et délai convenu) : https://www.maisonslesnaturelles.fr/informations-legales/.Agence Maisons Les Naturelles de Abbeville (80100)
- Téléphone :
- 03 22 19 22 55
- Adressse :
- 2 rue Lesueur
80100 Abbeville, France
