Maison neuve à
Ruisseauville
(62310) Référence :
MJ2314819_4
Prix du projet : Maison avec Terrain
prix 332 720 €
- 6 pièces
- 5 chambres
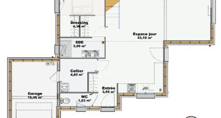
- Surface maison 114 m2
Maison T6 (114 m²) en vente à Ruisseauville
IDÉALEMENT SITUÉE - MAISON 6 PIÈCES NEUVE
En vente : Maisons Les Naturelles Abbeville vous présente cette maison de 6 pièces de 114 m² et de 986 m² de terrain idéalement située dans Ruisseauville (62310).
Cette maison comporte 2 niveaux. Son intérieur comporte cinq chambres, une cuisine et deux salles de bains. Cette maison est neuve.
La maison se trouve dans un quartier prisé. Il y a l'École Primaire-Regroupement Pédagogique Intercommunal Concentré de Ruisseauville à moins de 10 minutes à pied. Côté transports en commun, on trouve les gares Blangy-sur-Ternoise et Auchy-lès-Hesdin à moins de 10 minutes en voiture.
Elle est à vendre pour la somme de 332 720 €.
N'hésitez pas à prendre contact avec notre agence (Maxime JACQUEMONT : O6-14-54-18-76) pour tout renseignement sur la maison. Maisons Les Naturelles Abbeville est là pour vous accompagner dans tous vos projets immobiliers.
Mentions légales
Terrain proposé par un partenaire foncier selon disponibilités et autorisation de publicité au prix de 23 720 €. Hors droit d'enregistrement et frais de notaire. Maison proposée, avec un contrat de construction de maison individuelle, dans le cadre de la loi du 19/12/1990, au prix de 309 000 € (Hors branchements et raccordements, papiers peints, peintures, revêtement de sol dans les chambres, qui sont chiffrés dans les travaux qui restent à charge du client. Tarif modifiable sans préavis). Étiquette énergie : A. Différents modèles disponibles pour ce terrain. Assurances et garanties du constructeur comprises (RC professionnelle, décennale, dommage ouvrage).Agence Maisons Les Naturelles de Abbeville (80100)
- Téléphone :
- 03 22 19 22 55
- Adressse :
- 2 rue Lesueur
80100 Abbeville, France
