Maison neuve à
Rang-du-Fliers
(62180) Référence :
TW2394645_3
Prix du projet : Maison avec Terrain
prix 221 000 €
- 5 pièces
- 3 chambres
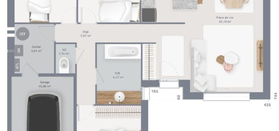
- Surface maison 90 m2
Rang-du-Fliers : maison F5 (90 m²) en vente
EMPLACEMENT PRIVILÉGIÉ - MAISON 5 PIÈCES NEUVE
En vente à 7 km de la Manche, Maisons Les Naturelles Berck vous propose cette maison de 5 pièces de plain-pied de 90 m², bénéficiant d'un emplacement privilégié dans Rang-du-Fliers (62180).
Conçue de plain-pied, elle offre trois chambres, une cuisine et une salle de bains. La maison est neuve.
Le terrain de la propriété s'étend sur 376 m².
Cette propriété se trouve dans un quartier attractif. Il y a l'École Élémentaire Jacques Prévert et l'École Maternelle les Lutins à moins de 10 minutes à pied. Côté transports, on trouve la gare Rang-du-Fliers-Verton-Berck à moins de 10 minutes en voiture. L'autoroute A16 est accessible à 4 km. Il y a un tennis, un supermarché, trois commerces, deux boulangeries, une boucherie-charcuterie et un bureau de poste dans les environs.
Elle est à vendre pour la somme de 221 000 €.
N'hésitez pas à prendre contact avec notre agence (WAILLE Thibaud : 07-82-38-37-61) pour toute question sur la maison ou sur les démarches à suivre.
Annonce proposée par un Agent Commercial Partenaire.
Mentions légales
Terrain proposé par un partenaire foncier selon disponibilités et autorisation de publicité au prix de 57 302 €. Hors droit d'enregistrement et frais de notaire. Terrain + Maison proposés au prix de 221 000 € (Hors branchements et raccordements, papiers peints, peintures, revêtement de sol dans les chambres. Tarif modifiable sans préavis). Etiquette énergie : A. Différents modèles disponibles pour ce terrain. Assurances et garanties du constructeur (RC professionnelle, décennale, dommage ouvrage, garantie de remboursement de l'acompte, livraison à prix et délai convenu) : https://www.maisonslesnaturelles.fr/informations-legales/.Agence Maisons Les Naturelles de Berck (62600)
- Téléphone :
- 03 21 84 80 26
- Adressse :
- 52 route de Merlimont
62600 Berck, France
