Maison neuve à
Rang-du-Fliers
(62180) Référence :
TW2345959_3
Prix du projet : Maison avec Terrain
prix 240 000 €
- 5 pièces
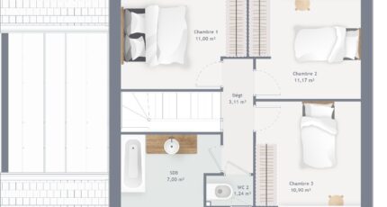
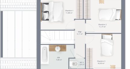
- 3 chambres
- Surface maison 90 m2
VENTE d'une maison T5 (90 m²) à Rang-du-Fliers
EMPLACEMENT PRIVILÉGIÉ - MAISON 5 PIÈCES NEUVE
En vente à 7 km de la Manche, nous vous présentons, bénéficiant d'un emplacement d'exception dans Rang-du-Fliers (62180), cette maison de 5 pièces de 90 m². Son intérieur dispose de trois chambres, d'une cuisine et d'une salle de bains.
Le terrain de cette maison est de 422 m².
Cette maison possède 2 niveaux. Elle est neuve.
La maison est située dans un quartier recherché. Il y a l'École Élémentaire Jacques Prévert et l'École Maternelle les Lutins à moins de 10 minutes à pied. Niveau transports en commun, on trouve la gare Rang-du-Fliers-Verton-Berck à moins de 10 minutes en voiture. L'autoroute A16 est accessible à 4 km. Il y a un tennis, un supermarché, trois commerces, deux boulangeries, un bureau de poste et une boucherie-charcuterie à quelques minutes.
Elle est à vendre pour la somme de 240 000 €.
Contactez Thibaud WAILLE (07-82-38-37-61) pour toute information sur la maison ou sur les modalités de vente. Concrétisez vos projets immobiliers avec Maisons Les Naturelles Berck.
Annonce proposée par un Agent Commercial Partenaire.
Mentions légales
Terrain proposé par un partenaire foncier selon disponibilités et autorisation de publicité au prix de 58 436 €. Hors droit d'enregistrement et frais de notaire. Maison proposée, avec un contrat de construction de maison individuelle, dans le cadre de la loi du 19/12/1990, au prix de 181 564 € (Hors branchements et raccordements, papiers peints, peintures, revêtement de sol dans les chambres, qui sont chiffrés dans les travaux qui restent à charge du client. Tarif modifiable sans préavis). Étiquette énergie : A. Différents modèles disponibles pour ce terrain. Assurances et garanties du constructeur comprises (RC professionnelle, décennale, dommage ouvrage).Agence Maisons Les Naturelles de Berck (62600)
- Téléphone :
- 03 21 84 80 26
- Adressse :
- 52 route de Merlimont
62600 Berck, France
