Maison neuve à
Oneux
(80135) Référence :
CC2264317_3
Prix du projet : Maison avec Terrain
prix 363 773 €
- 4 pièces
- 3 chambres
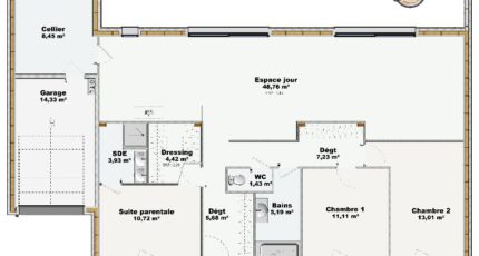
- Surface maison 120 m2
Maison à ossature bois T4 (120 m²) en vente à Oneux
EMPLACEMENT PRIVILÉGIÉ - MAISON A OSSATURE BOIS 4 PIÈCES NEUVE
À 48 km de la Manche, votre agence Maisons Les Naturelles Abbeville est heureuse de vous présenter cette maison de 4 pièces de plain-pied de 120 m² et de 1 079 m² de terrain bénéficiant d'un emplacement d'exception dans Oneux (80135).
Son intérieur inclut trois chambres, une cuisine et deux salles de bains. La maison est neuve.
Cette maison se situe dans un secteur prisé. Il y a plusieurs écoles (maternelle, élémentaire, primaire et collège) à moins de 10 minutes en voiture. On trouve un accès à l'autoroute A16 à 9 km. On trouve des tennis, trois bibliothèques, quatre boulangeries, des commerces, trois supermarchés, des boucheries-charcuteries et deux épiceries à quelques minutes.
Son prix de vente est de 363 773 €.
N'hésitez pas à prendre contact avec notre constructeur (Camille CISSEVILLE : 06-86-73-58-15) pour toute question sur la propriété. Donnez vie à vos projets immobiliers avec Maisons Les Naturelles Abbeville.
Mentions légales
Terrain proposé par un partenaire foncier selon disponibilités et autorisation de publicité au prix de 47 476 €. Hors droit d'enregistrement et frais de notaire. Maison proposée, avec un contrat de construction de maison individuelle, dans le cadre de la loi du 19/12/1990, au prix de 316 297 € (Hors branchements et raccordements, papiers peints, peintures, revêtement de sol dans les chambres, qui sont chiffrés dans les travaux qui restent à charge du client. Tarif modifiable sans préavis). Étiquette énergie : A. Différents modèles disponibles pour ce terrain. Assurances et garanties du constructeur comprises (RC professionnelle, décennale, dommage ouvrage).Agence Maisons Les Naturelles de Abbeville (80100)
- Téléphone :
- 03 22 19 22 55
- Adressse :
- 2 rue Lesueur
80100 Abbeville, France
