Maison neuve à
Mons-Boubert
(80210) Référence :
CC2322352_2
Prix du projet : Maison avec Terrain
prix 434 297 €
- 4 pièces
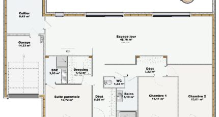
- 3 chambres
- Surface maison 120 m2
VENTE : maison à ossature bois T4 (120 m²) à Mons-Boubert
EMPLACEMENT PRIVILÉGIÉ - MAISON OSSATURE BOIS 4 PIÈCES NEUVE
En vente : à 19 km de la Manche, bénéficiant d'un emplacement d'exception dans Mons-Boubert (80210), nous vous proposons cette maison de 4 pièces de plain-pied de 120 m² et de 2 000 m² de terrain.
Elle compte trois chambres, une cuisine et deux salles de bains. La maison est neuve.
Ce bien est situé dans un quartier prisé. On y trouve une école primaire. Niveau transports en commun, on trouve la gare Noyelles-sur-Mer à moins de 10 minutes en voiture. Il y a un accès à l'autoroute A28 à 10 km. Il y a une boucherie-charcuterie à proximité.
Il est à vendre pour la somme de 434 297 €.
N'hésitez pas à prendre contact avec Camille CISSEVILLE (tél : 06-86-73-58-15) pour tout renseignement sur la maison ou sur les démarches à suivre.
Mentions légales
Terrain proposé par un partenaire foncier selon disponibilités et autorisation de publicité au prix de 95 000 €. Hors droit d'enregistrement et frais de notaire. Maison proposée, avec un contrat de construction de maison individuelle, dans le cadre de la loi du 19/12/1990, au prix de 339 297 € (Hors branchements et raccordements, papiers peints, peintures, revêtement de sol dans les chambres, qui sont chiffrés dans les travaux qui restent à charge du client. Tarif modifiable sans préavis). Étiquette énergie : A. Différents modèles disponibles pour ce terrain. Assurances et garanties du constructeur comprises (RC professionnelle, décennale, dommage ouvrage).Agence Maisons Les Naturelles de Abbeville (80100)
- Téléphone :
- 03 22 19 22 55
- Adressse :
- 2 rue Lesueur
80100 Abbeville, France
