Maison neuve à
Mons-Boubert
(80210) Référence :
CC2322352_1
Prix du projet : Maison avec Terrain
prix 349 956 €
- 5 pièces
- 4 chambres
- Surface maison 113 m2
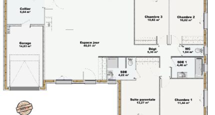
VENTE : maison à ossature bois F5 (113 m²) à Mons-Boubert
EMPLACEMENT PRIVILÉGIÉ - MAISON OSSATURE BOIS 5 PIÈCES NEUVE
À 19 km de la Manche, Maisons Les Naturelles Abbeville vous propose à vendre, bénéficiant d'un emplacement d'exception dans Mons-Boubert (80210), cette maison de 5 pièces de plain-pied de 113 m². Conçue de plain-pied, elle compte quatre chambres, une cuisine et deux salles de bains.
Le terrain de la maison s'étend sur 2 000 m².
La maison est neuve.
Cette maison est située dans un secteur prisé. On y trouve une école primaire. Côté transports, on trouve la gare Noyelles-sur-Mer à moins de 10 minutes en voiture. Il y a un accès à l'autoroute A28 à 10 km. Il y a une boucherie-charcuterie dans les environs.
Elle est à vendre pour la somme de 349 956 €.
Prenez contact avec notre agence (Camille CISSEVILLE : 06-86-73-58-15) pour toute information sur la maison, sur les modalités de vente ou sur les démarches à suivre.
Mentions légales
Terrain proposé par un partenaire foncier selon disponibilités et autorisation de publicité au prix de 95 000 €. Hors droit d'enregistrement et frais de notaire. Maison proposée, avec un contrat de construction de maison individuelle, dans le cadre de la loi du 19/12/1990, au prix de 254 956 € (Hors branchements et raccordements, papiers peints, peintures, revêtement de sol dans les chambres, qui sont chiffrés dans les travaux qui restent à charge du client. Tarif modifiable sans préavis). Étiquette énergie : A. Différents modèles disponibles pour ce terrain. Assurances et garanties du constructeur comprises (RC professionnelle, décennale, dommage ouvrage).Agence Maisons Les Naturelles de Abbeville (80100)
- Téléphone :
- 03 22 19 22 55
- Adressse :
- 2 rue Lesueur
80100 Abbeville, France
