Maison neuve à
Henneveux
(62142) Référence :
TS2301308_1
Prix du projet : Maison avec Terrain
prix 317 900 €
- 5 pièces
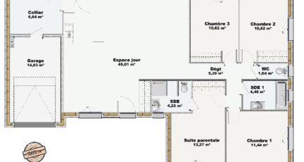
- 4 chambres
- Surface maison 113 m2
Maison de 5 pièces (113 m²) en vente à Henneveux
MAISON 5 PIÈCES NEUVE - PROCHE DE CALAIS
À vendre : à 27 km de la Manche et à 25 km de Calais, à Henneveux (62142), votre agence Maisons Les Naturelles Boulogne-sur-Mer est ravie de vous présenter cette maison de 5 pièces de plain-pied de 113 m².
Elle inclut quatre chambres, une cuisine et deux salles de bains. La maison est neuve.
Le terrain du bien s'étend sur 1 249 m².
L'École Élémentaire de la Grande Vallée rpi 46 est implantée à moins de 10 minutes à pied. Il y a un accès à la nationale N42 à 3 km.
Elle est à vendre pour la somme de 317 900 €.
Contactez Tony SORET (tél : 06-19-80-48-71) pour toute information sur cette maison, sur les démarches à suivre ou sur les modalités de vente.
« Depuis 1968, Maisons Les Naturelles accompagne ses clients dans la construction de maisons alliant savoir-faire artisanal, traditions et respect de l'environnement.
Avec plus de 5 500 réalisations à notre actif, nous sommes reconnus pour la qualité de nos constructions et notre engagement en faveur d'une approche plus durable de l'habitat.
Nous privilégions des matériaux français, biosourcés et à faible empreinte carbone, tout en collaborant avec des artisans locaux qui partagent nos valeurs.
Parce que chaque client est unique, nous concevons des maisons sur mesure, pensées pour allier esthétique, confort et haute performance énergétique.
Construisons ensemble un avenir plus responsable, en créant des maisons qui s'intègrent harmonieusement à leur environnement et favorisent un mode de vie durable. »
Mentions légales
Terrain proposé par un partenaire foncier selon disponibilités et autorisation de publicité au prix de 68 980 €. Hors droit d'enregistrement et frais de notaire. Maison proposée, avec un contrat de construction de maison individuelle, dans le cadre de la loi du 19/12/1990, au prix de 248 920 € (Hors branchements et raccordements, papiers peints, peintures, revêtement de sol dans les chambres, qui sont chiffrés dans les travaux qui restent à charge du client. Tarif modifiable sans préavis). Étiquette énergie : A. Différents modèles disponibles pour ce terrain. Assurances et garanties du constructeur comprises (RC professionnelle, décennale, dommage ouvrage).Agence Maisons Les Naturelles de Boulogne-sur-Mer (62200)
- Téléphone :
- 03 21 92 26 26
- Adressse :
- 10 rue Felix Adam
62200 Boulogne-sur-Mer, France
