Maison neuve à
Groffliers
(62600) Référence :
TW2327420_5
Prix du projet : Maison avec Terrain
prix 470 000 €
- 6 pièces
- 5 chambres
- Surface maison 114 m2
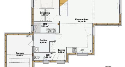
VENTE : maison de 6 pièces (114 m²) à Groffliers
MAISON 6 PIÈCES NEUVE
En vente : à 3 km de la Manche, nous vous proposons cette maison de 6 pièces de 114 m² à Groffliers (62600).
Cette maison compte 2 niveaux. Son intérieur inclut cinq chambres, une cuisine et deux salles de bains. La maison est neuve.
Le terrain du bien s'étend sur 903 m².
Il y a des écoles primaires à moins de 10 minutes à pied et une crèche. Niveau transports, on trouve la gare Rang-du-Fliers-Verton-Berck à moins de 10 minutes en voiture. Il y a un accès à l'autoroute A16 à 8 km. Il y a quatre boulangeries, des commerces, deux supermarchés, une épicerie et une poissonnerie à proximité.
Elle est à vendre pour la somme de 470 000 €.
Contactez Thibaud WAILLE (07-82-38-37-61) pour obtenir de plus amples renseignements sur le bien. Donnez vie à vos projets immobiliers avec Maisons Les Naturelles Berck.
Annonce proposée par un Agent Commercial Partenaire.
Mentions légales
Terrain proposé par un partenaire foncier selon disponibilités et autorisation de publicité au prix de 114 480 €. Hors droit d'enregistrement et frais de notaire. Maison proposée, avec un contrat de construction de maison individuelle, dans le cadre de la loi du 19/12/1990, au prix de 355 520 € (Hors branchements et raccordements, papiers peints, peintures, revêtement de sol dans les chambres, qui sont chiffrés dans les travaux qui restent à charge du client. Tarif modifiable sans préavis). Étiquette énergie : A. Différents modèles disponibles pour ce terrain. Assurances et garanties du constructeur comprises (RC professionnelle, décennale, dommage ouvrage).Agence Maisons Les Naturelles de Berck (62600)
- Téléphone :
- 03 21 84 80 26
- Adressse :
- 52 route de Merlimont
62600 Berck, France
