Maison neuve à
Bernaville
(80370) Référence :
CC2287986_2
Prix du projet : Maison avec Terrain
prix 395 397 €
- 4 pièces
- 3 chambres
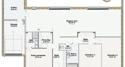
- Surface maison 120 m2
VENTE d'une maison à ossature bois de 4 pièces (120 m²) à Frohen le Grand - 12 minutes de Doullens
MAISON OSSATURE BOIS 4 PIÈCES NEUVE
Notre agence Maisons Les Naturelles Abbeville est ravie de vous proposer en vente à Frohen le Grand (80370), cette maison de 4 pièces de plain-pied de 120 m² et de 2 844 m² de terrain.
Conçue de plain-pied, elle compte trois chambres, une cuisine et deux salles de bains. La maison est neuve.
Il y a une boucherie-charcuterie dans les environs.
Son prix de vente est de 395 397 €.
Prenez contact avec Camille CISSEVILLE (tél : 06-86-73-58-15) pour toute question sur la maison, sur les démarches à suivre ou sur les modalités de vente.
Mentions légales
Terrain proposé par un partenaire foncier selon disponibilités et autorisation de publicité au prix de 71 100 €. Hors droit d'enregistrement et frais de notaire. Terrain + Maison proposés au prix de 324 297 € (Hors branchements et raccordements, papiers peints, peintures, revêtement de sol dans les chambres. Tarif modifiable sans préavis). Etiquette énergie : A. Différents modèles disponibles pour ce terrain. Assurances et garanties du constructeur (RC professionnelle, décennale, dommage ouvrage, garantie de remboursement de l'acompte, livraison à prix et délai convenu) : https://www.maisonslesnaturelles.fr/informations-legales/.Agence Maisons Les Naturelles de Abbeville (80100)
- Téléphone :
- 03 22 19 22 55
- Adressse :
- 2 rue Lesueur
80100 Abbeville, France
