Maison neuve à
Carly
(62830) Référence :
TS2385384_1
Prix du projet : Maison avec Terrain
prix 335 260 €
- 8 pièces
- 5 chambres
- Surface maison 145 m2
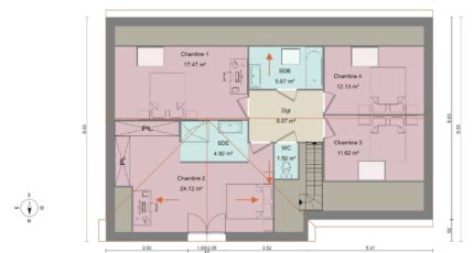
Carly : maison F8 (145 m²) en vente
MAISON 8 PIÈCES NEUVE - PROCHE DE BOULOGNE-SUR-MER
En vente : à 17 km de la Manche et à quelques kilomètres de Boulogne-sur-Mer, nous vous proposons cette maison de 8 pièces de 145 m² et de 755 m² de terrain à Carly (62830).
Cette maison comporte 2 niveaux. Son intérieur est composé de cinq chambres, d'une cuisine et de trois salles de bains. La maison est neuve.
L'École Primaire rpi 72 se trouve à moins de 10 minutes à pied. Niveau transports, il y a quatre gares à moins de 10 minutes en voiture. L'autoroute A16 et les nationales N1 et N42 sont accessibles à moins de 9 km. On trouve un tennis à quelques minutes.
Son prix de vente est de 335 260 €.
Contactez notre agence (SORET Tony : 06-19-80-48-71) pour toute question sur la maison, sur les modalités de vente ou sur les démarches à suivre. Faites de vos projets immobiliers une réalité avec Maisons Les Naturelles Boulogne-sur-Mer.
« Depuis 1968, Maisons Les Naturelles accompagne ses clients dans la construction de maisons alliant savoir-faire artisanal, traditions et respect de l'environnement.
Avec plus de 5 500 réalisations à notre actif, nous sommes reconnus pour la qualité de nos constructions et notre engagement en faveur d'une approche plus durable de l'habitat.
Nous privilégions des matériaux français, biosourcés et à faible empreinte carbone, tout en collaborant avec des artisans locaux qui partagent nos valeurs.
Parce que chaque client est unique, nous concevons des maisons sur mesure, pensées pour allier esthétique, confort et haute performance énergétique.
Construisons ensemble un avenir plus responsable, en créant des maisons qui s'intègrent harmonieusement à leur environnement et favorisent un mode de vie durable. »
Mentions légales
Terrain proposé par un partenaire foncier selon disponibilités et autorisation de publicité au prix de 75 500 €. Hors droit d'enregistrement et frais de notaire. Terrain + Maison proposés au prix de 259 760 € (Hors branchements et raccordements, papiers peints, peintures, revêtement de sol dans les chambres. Tarif modifiable sans préavis). Etiquette énergie : A. Différents modèles disponibles pour ce terrain. Assurances et garanties du constructeur (RC professionnelle, décennale, dommage ouvrage, garantie de remboursement de l'acompte, livraison à prix et délai convenu) : https://www.maisonslesnaturelles.fr/informations-legales/.Agence Maisons Les Naturelles de Boulogne-sur-Mer (62200)
- Téléphone :
- 03 21 92 26 26
- Adressse :
- 10 rue Felix Adam
62200 Boulogne-sur-Mer, France
