Maison neuve à
Buire-le-Sec
(62870) Référence :
TW2355502_4
Prix du projet : Maison avec Terrain
prix 270 000 €
- 5 pièces
- 4 chambres
- Surface maison 113 m2
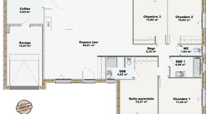
VENTE d'une maison de 5 pièces (113 m²) à Buire-le-Sec
IDÉALEMENT SITUÉE - MAISON 5 PIÈCES NEUVE
À vendre : à 25 km de la Manche, découvrez cette maison de 5 pièces de plain-pied de 113 m², idéalement située dans Buire-le-Sec (62870).
Elle est composée de quatre chambres, d'une cuisine et de deux salles de bains. La maison est neuve.
Le terrain de la propriété est de 800 m².
Cette maison se trouve dans un secteur recherché. Une école primaire y est implantée. Côté transports en commun, il y a quatre gares à moins de 10 minutes en voiture. On trouve un accès à l'autoroute A16 à 11 km.
Elle est proposée à l'achat pour 270 000 €.
Prenez contact avec notre agence (Thibaud WAILLE : 07-82-38-37-61) pour toute information sur la maison, sur les démarches à suivre ou sur les modalités de vente.
Annonce proposée par un Agent Commercial Partenaire.
Mentions légales
Terrain proposé par un partenaire foncier selon disponibilités et autorisation de publicité au prix de 25 000 €. Hors droit d'enregistrement et frais de notaire. Maison proposée, avec un contrat de construction de maison individuelle, dans le cadre de la loi du 19/12/1990, au prix de 245 000 € (Hors branchements et raccordements, papiers peints, peintures, revêtement de sol dans les chambres, qui sont chiffrés dans les travaux qui restent à charge du client. Tarif modifiable sans préavis). Étiquette énergie : A. Différents modèles disponibles pour ce terrain. Assurances et garanties du constructeur comprises (RC professionnelle, décennale, dommage ouvrage).Agence Maisons Les Naturelles de Berck (62600)
- Téléphone :
- 03 21 84 80 26
- Adressse :
- 52 route de Merlimont
62600 Berck, France
