Maison neuve à
Buire-le-Sec
(62870) Référence :
TW2355502_3
Prix du projet : Maison avec Terrain
prix 325 000 €
- 7 pièces
- 3 chambres
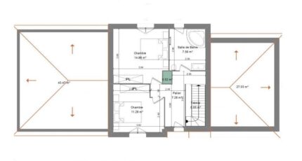
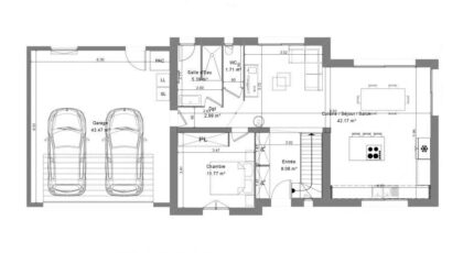
- Surface maison 115 m2
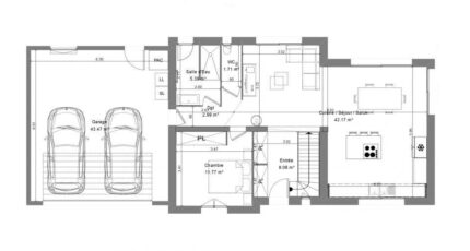
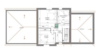
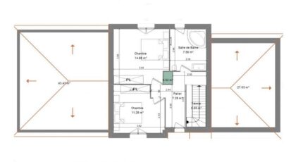
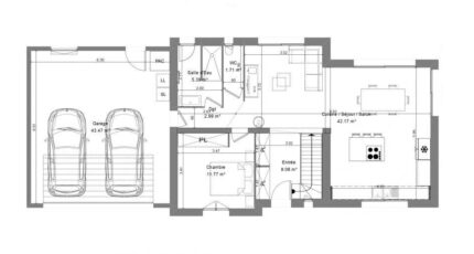
VENTE d'une maison F7 (115 m²) à Buire-le-Sec
IDÉALEMENT SITUÉE - MAISON 7 PIÈCES NEUVE
En vente à 25 km de la Manche, nous sommes ravis de vous présenter, idéalement située dans Buire-le-Sec (62870), cette maison de 7 pièces de 115 m².
Cette maison compte 2 niveaux. Elle compte trois chambres, une cuisine et deux salles de bains. La maison est neuve.
Le terrain de la propriété est de 800 m².
Cette maison se trouve dans un secteur convoité. On y trouve une école primaire. Niveau transports en commun, il y a quatre gares à moins de 10 minutes en voiture. L'autoroute A16 est accessible à 11 km.
Son prix de vente est de 325 000 €.
N'hésitez pas à prendre contact avec Thibaud WAILLE (tél : 07-82-38-37-61) pour toute question sur la maison ou sur les modalités de vente.
Annonce proposée par un Agent Commercial Partenaire.
Mentions légales
Terrain proposé par un partenaire foncier selon disponibilités et autorisation de publicité au prix de 25 000 €. Hors droit d'enregistrement et frais de notaire. Maison proposée, avec un contrat de construction de maison individuelle, dans le cadre de la loi du 19/12/1990, au prix de 300 000 € (Hors branchements et raccordements, papiers peints, peintures, revêtement de sol dans les chambres, qui sont chiffrés dans les travaux qui restent à charge du client. Tarif modifiable sans préavis). Étiquette énergie : A. Différents modèles disponibles pour ce terrain. Assurances et garanties du constructeur comprises (RC professionnelle, décennale, dommage ouvrage).Agence Maisons Les Naturelles de Berck (62600)
- Téléphone :
- 03 21 84 80 26
- Adressse :
- 52 route de Merlimont
62600 Berck, France
