Maison neuve à
Buigny-Saint-Maclou
(80132) Référence :
CC2385540_2
Prix du projet : Maison avec Terrain
prix 298 779 €
- 8 pièces
- 5 chambres
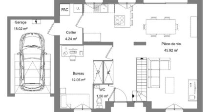
- Surface maison 123 m2
VENTE : maison de 8 pièces (123 m²) à Buigny-Saint-Maclou
IDÉALEMENT SITUÉE - MAISON 8 PIÈCES NEUVE
En vente à 33 km de la Manche, nous vous présentons cette maison de 8 pièces de 123 m² et de 801 m² de terrain idéalement située dans Buigny-Saint-Maclou (80132).
Cette maison possède 2 niveaux. Son intérieur propose cinq chambres, une cuisine et deux salles de bains. Cette maison est neuve.
Cette maison est située dans un quartier convoité. On y trouve une école maternelle. Côté transports en commun, on trouve deux gares (Abbeville et Noyelles-sur-Mer) à moins de 10 minutes en voiture. Les autoroutes A16 et A28 sont accessibles à moins de 4 km. Il y a deux tennis dans les environs.
Son prix de vente est de 298 779 €.
Contactez notre agence (Camille CISSEVILLE : 06-86-73-58-15) pour toute question sur la propriété. Maisons Les Naturelles Abbeville vous accompagne à toutes les étapes de l'achat et dans tous vos projets immobiliers.
Mentions légales
Terrain proposé par un partenaire foncier selon disponibilités et autorisation de publicité au prix de 70 000 €. Hors droit d'enregistrement et frais de notaire. Terrain + Maison proposés au prix de 228 779 € (Hors branchements et raccordements, papiers peints, peintures, revêtement de sol dans les chambres. Tarif modifiable sans préavis). Etiquette énergie : A. Différents modèles disponibles pour ce terrain. Assurances et garanties du constructeur (RC professionnelle, décennale, dommage ouvrage, garantie de remboursement de l'acompte, livraison à prix et délai convenu) : https://www.maisonslesnaturelles.fr/informations-legales/.Agence Maisons Les Naturelles de Abbeville (80100)
- Téléphone :
- 03 22 19 22 55
- Adressse :
- 2 rue Lesueur
80100 Abbeville, France
