Maison neuve à
Bellebrune
(62142) Référence :
SH2337652_1
Prix du projet : Maison avec Terrain
prix 361 986 €
- 5 pièces
- 3 chambres
- Surface maison 90 m2
🌿 À vendre - Projet de construction à Brunembert (62240)
🏡 Maison moderne à étage complet - Terrain orienté Ouest
Maisons Les Naturelles, constructeur régional depuis 1968, vous propose un projet de construction personnalisé sur une belle parcelle située à Brunembert, charmante commune de la campagne boulonnaise, appréciée pour sa tranquillité, son environnement naturel et sa proximité avec Desvres, Marquise et les grands axes.
✨ Votre future maison - Moderne, fonctionnelle et lumineuse
Cette maison à étage complet d'environ 95 m² habitables offre un agencement optimisé et une architecture contemporaine :
Au rez-de-chaussée :
Belle pièce de vie de 31 m² ouverte et lumineuse
Cuisine contemporaine
Cellier pratique
WC séparé
Garage intégré
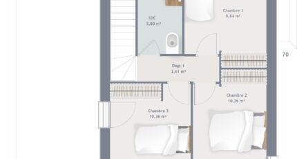
À l'étage :
3 chambres confortables
Salle d'eau avec grande douche et meuble vasque
Distribution optimisée pour un confort de vie familial
Maison conforme aux normes RE2020, performante, économique et entièrement personnalisable.
📍 Le terrain - Un emplacement agréable et bien orienté
Parcelle située à Brunembert, environnement calme et verdoyant
Orientation Ouest, idéale pour profiter du soleil en fin de journée
Cadre paisible en pleine nature, parfait pour une vie de famille
Commune dynamique : école, associations, commerces à proximité
Accès rapide à Desvres, Samer, Boulogne-sur-Mer et A16
🔨 Construire avec Maisons Les Naturelles, c'est choisir la sérénité
Constructeur depuis plus de 55 ans
Plus de 5 500 maisons réalisées dans la région
Matériaux principalement français et artisans locaux
Garantie d'un grand groupe : Hexaôm
Accompagnement complet : étude, démarches, plans, suivi de chantier, SAV
Projet 100 % personnalisable selon vos besoins et votre budget
Votre interlocutrice locale :
📞 Sabrina Herbez - 06 86 73 49 16
📍 Agence Maisons Les Naturelles - Boulogne-sur-Mer
Mentions légales
Terrain proposé par un partenaire foncier selon disponibilités et autorisation de publicité au prix de 85 000 €. Hors droit d'enregistrement et frais de notaire. Maison proposée, avec un contrat de construction de maison individuelle, dans le cadre de la loi du 19/12/1990, au prix de 276 986 € (Hors branchements et raccordements, papiers peints, peintures, revêtement de sol dans les chambres, qui sont chiffrés dans les travaux qui restent à charge du client. Tarif modifiable sans préavis). Étiquette énergie : A. Différents modèles disponibles pour ce terrain. Assurances et garanties du constructeur comprises (RC professionnelle, décennale, dommage ouvrage).Agence Maisons Les Naturelles de Boulogne-sur-Mer (62200)
- Téléphone :
- 03 21 92 26 26
- Adressse :
- 10 rue Felix Adam
62200 Boulogne-sur-Mer, France
