Maison neuve à
Auxi-le-Château
(62390) Référence :
MJ2287773_3
Prix du projet : Maison avec Terrain
prix 241 300 €
- 4 pièces
- 3 chambres
- Surface maison 94 m2
Auxi-le-Château : maison T4 (94 m²) à vendre
IDÉALEMENT SITUÉE - MAISON 4 PIÈCES NEUVE
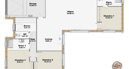
En vente : votre agence Maisons Les Naturelles Abbeville est heureuse de vous proposer, idéalement située dans Auxi-le-Château (62390), cette maison de 4 pièces de plain-pied de 94 m² et de 915 m² de terrain. Conçue de plain-pied, elle comporte trois chambres, une cuisine et deux salles de bains.
Cette maison est neuve.
La maison se trouve dans un secteur recherché. Il y a trois établissements scolaires à moins de 10 minutes à pied et, parmi lesquels l'École Primaire Privée Notre-Dame de Lourdes et le Collège du Val d'Authie.
Son prix de vente est de 241 300 €.
Prenez contact avec Maxime JACQUEMONT (O6-14-54-18-76) pour toute question sur le bien, sur les démarches à suivre ou sur les modalités de vente. Donnez vie à vos projets immobiliers avec Maisons Les Naturelles Abbeville.
Mentions légales
Terrain proposé par un partenaire foncier selon disponibilités et autorisation de publicité au prix de 23 800 €. Hors droit d'enregistrement et frais de notaire. Terrain + Maison proposés au prix de 217 500 € (Hors branchements et raccordements, papiers peints, peintures, revêtement de sol dans les chambres. Tarif modifiable sans préavis). Etiquette énergie : A. Différents modèles disponibles pour ce terrain. Assurances et garanties du constructeur (RC professionnelle, décennale, dommage ouvrage, garantie de remboursement de l'acompte, livraison à prix et délai convenu) : https://www.maisonslesnaturelles.fr/informations-legales/.Agence Maisons Les Naturelles de Abbeville (80100)
- Téléphone :
- 03 22 19 22 55
- Adressse :
- 2 rue Lesueur
80100 Abbeville, France
